
關西明德段
Coming soon 敬請期待
更多關於未來的深刻藍圖將與您分享
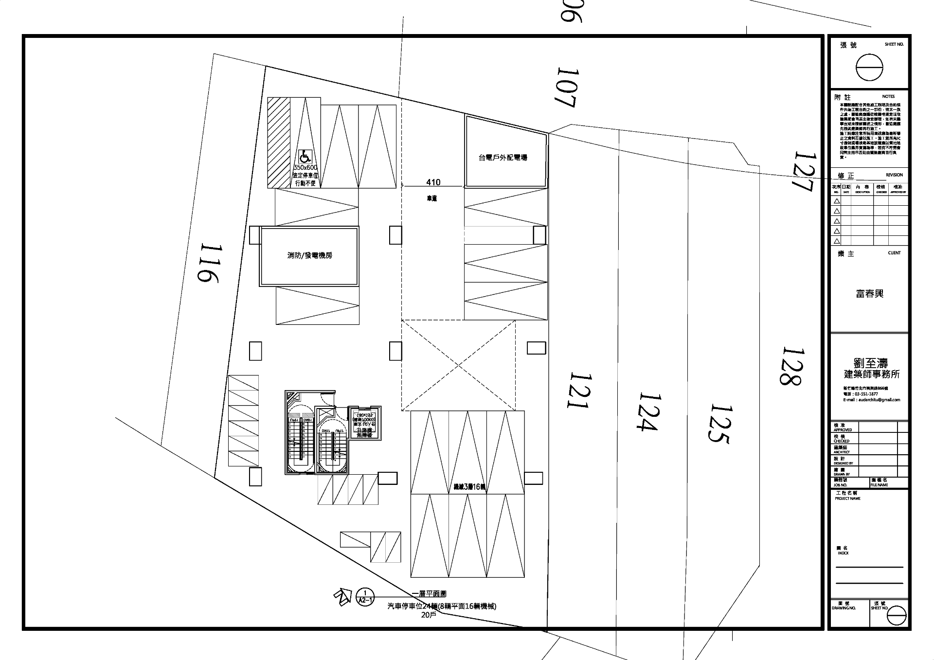
基本資料
• 基地位置 : 新竹縣關西鎮北斗里7鄰正義路118號
• 基地面積 : 646.78m²(約196坪)
• 總樓地板 : 1978.68m²
• 產品規劃 : 一層三戶
• 樓層規劃 : 地上8樓地下0樓
• 建築師 : 劉至濤建築師事務所
相關圖說
本公司提供的圖說僅供參考,實際施工依主管機關核定為準,圖說內容不作為最終依據。



劉至濤 建築師
-
學歷與證照扎實
-
中原大學建築學系碩士
-
106年通過高考建築師並取得執照
-
持有新竹縣建築師開業證書
-
-
豐富實務經歷
-
2010–2017年任職於李謝嵐建築師事務所,累積住宅與公共建築設計與監造經驗
-
2017年創立「劉至濤建築師事務所」,親自主持、多件新竹縣建造與使用執照案件成功取得
-
-
在地專業信任
-
事務所設於竹北市,深耕新竹地區,熟悉法規、審照流程及市場特性
-
從初步設計、規劃到法規審核與現場監造,全程由劉師專業把關
-
劉至濤建築師具備完整合法的證照與專業學歷,兼具十年住宅與公共建築設計監造經驗,並深耕在地市場與法規環境;從規劃到執行,他親自操盤、細節控管,提供專業信賴、順暢審照流程和品質放心的建案執行,讓您從設計到完工皆能安心、無後顧之憂。

